Casa semindipendente in vendita

Bagnolo In Piano, Via Tassone
€ 149.000
4 locali 4 locali
140 Mq 140 Mq
1 bagno 1 bagno

Casa semindipendente in vendita

Bagnolo In Piano, Via Tassone

Descrizione annuncio

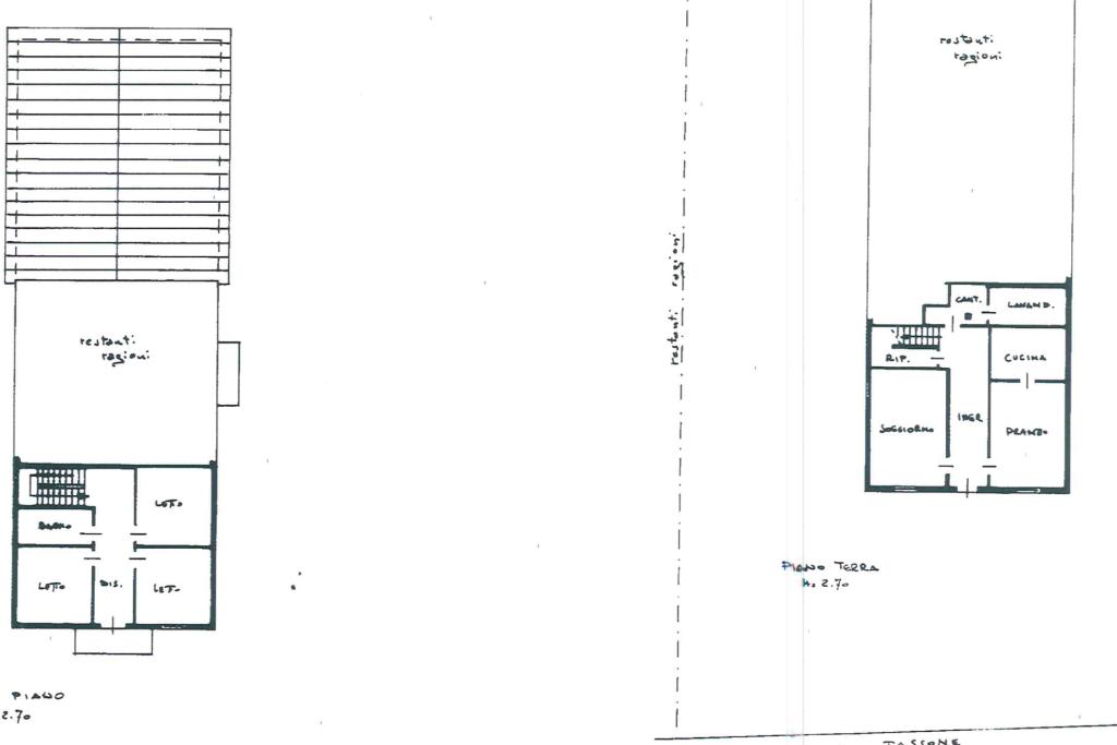
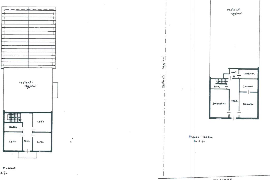
BAGNOLO IN PIANO - Nelle prime campagne bagnolesi, proponiamo in vendita una soluzione semindipendente disposta su due livelli.

L'immobile si compone al piano terra da ingresso, ampio soggiorno, sala da pranzo, cucina separata, ripostiglio, cantina e lavanderia.

Proseguendo al primo piano, troviamo un disimpegno notte con balcone, tre camere da letto matrimoniali ed un bagno con vasca.

Completa la proprietà un'autorimessa.

L'immobile è da ristrutturare.

Contattaci per ulteriori informazioni o per fissare un appuntamento al 339/8397696, oppure mandaci una mail e verrai ricontattato al più presto: rehn2@tecnocasa .it

Mostra tutto

Nelle vicinanze

Trasporto pubblico Trasporto pubblico
Bagnolo
Bagnolo
2,0 Km
Bagnolo Soave
Bagnolo Soave
2,0 Km
Pieverossa
Pieverossa
2,4 Km
Scuole Scuole
Istituto Comprensivo "Ezio Comparoni"
1,6 Km
Farmacia Farmacia
Parafarmacia Salute e Benessere
950 m
Farmacia Panciroli
1,7 Km
Farmacia Comunale Bagnolo
1,9 Km
Supermercati Supermercati
COOP
940 m
DIMEGLIO
1,9 Km
Negozi Negozi
Forno F.lli Rondini
1,8 Km
ECU
2,2 Km
Ristoranti Ristoranti
Ca' Rossa
1,6 Km
Trattoria da Probo
1,8 Km
Ristoranti
2,6 Km
Mostra tutto

Caratteristiche

Rif.:
61152278
Piano:
1 di 2 (Piano su più livelli)
Box:
1
Balconi:
1
Camere da letto:
3
Arredamento:
Assente
Mostra tutto
Prezzo Prezzo
€ 149.000
Rata mutuo Rata mutuo
€ 703 / mese
Spese annue Spese annue
€ 0
Proponi il tuo prezzoProponi il tuo prezzo

Classe Energetica

G
G
G
G
G
G
G
G
G
EP globale non rinnovabile:
580.00 kW h/m² anno
EP invernale del fabbricato:
EP estiva del fabbricato:
Anno di costruzione:
1992
Riscaldamento:
Autonomo
Tipo impianto:
A radiatori
Tipo alimentazione:
Metano

Ti interessa visionare l'immobile?

Fissa un appuntamento  Fissa un appuntamento

Richiedi informazioni

Clicca su Leggi per aprire l'informativa
* Questi campi sono obbligatori

Calcola il tuo mutuo

Semplice e senza impegno
Anticipo

( % )
Mutuo

( % )

pochi semplici passi

inserisci i tuoi dati
Questionario completato
Grazie per aver richiesto un appuntamento senza impegno con un nostro Consulente del Credito e Assicurativo.

Hai inserito correttamente tutti i dati necessari e a breve riceverai una e-mail con un link da convalidare per inviare i tuoi dati.
Affiliato
Studio Bagnolo In Piano Srl
Via Roma, 2/N 42011 Bagnolo In Piano (RE)

Il nostro staff


  • Alessandro Pasquali
    Affiliato

  • Cristian Salardi
    Responsabile

  • Alessandro Maddaloni
    Collaboratore

  • Anastasiya Slobodyan
    Coordinatrice
Via Roma, 2/N 42011 Bagnolo In Piano (RE)
Zona: Bagnolo In Piano-Pieve Rossa-San Tommaso-San Michele
Mostra su mappa
Orari: Dal lunedi al venerdi dalle 09:00 alle 13:00 - dalle 15:00 alle 20:00; il sabato dalle 09:00 alle 13:00 - dalle 15: 00 alle 18:00.
Affiliato
Studio Bagnolo In Piano Srl
Via Roma, 2/N 42011 Bagnolo In Piano (RE)

2025 Tecnocasa Franchising S.p.A. - P. IVA 08365160152 - Via Monte Bianco 60/A 20089 Rozzano (MI). Ogni agenzia ha un proprio titolare ed è autonoma. Privacy policy | Policy utilizzo | Cookie policy