Trilocale in vendita

Bagnolo In Piano, Via antonio labriola
Informazioni in agenzia
3 locali 3 locali
89 Mq 89 Mq
1 bagno 1 bagno

Trilocale in vendita

Bagnolo In Piano, Via antonio labriola

Descrizione annuncio

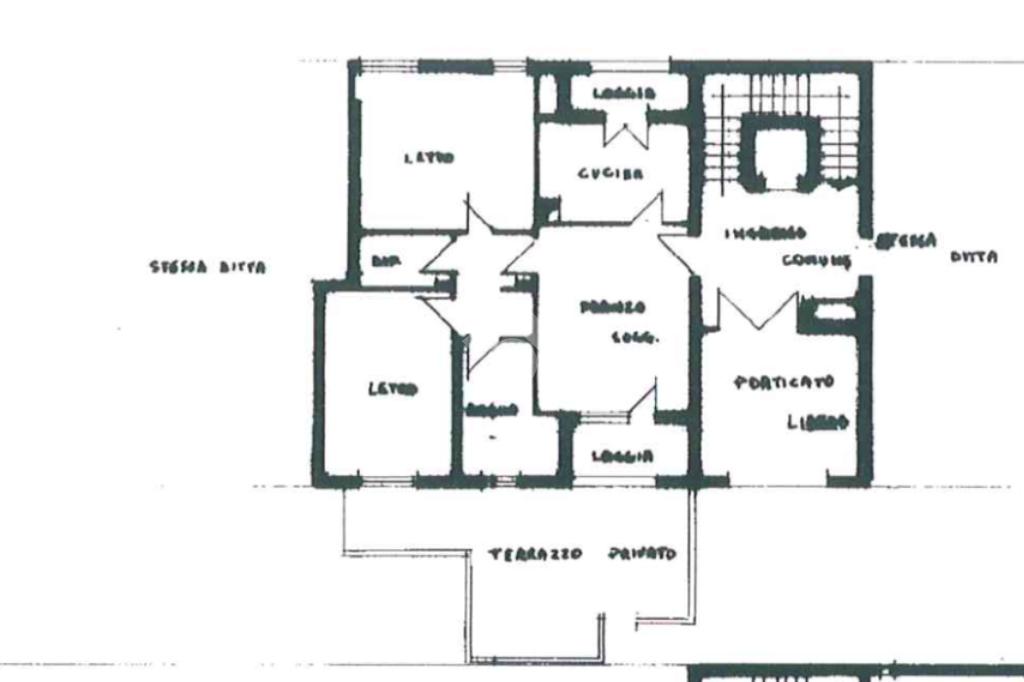
BAGNOLO IN PIANO – In contesto residenziale tranquillo, proponiamo in vendita appartamento trilocale posto al primo piano.

L’ingresso si apre su una luminosa zona giorno con soggiorno, dotato di accesso ad una loggia privata e ad un ampio terrazzo, ideale per momenti di relax all’aperto. La cucina è separata e dispone anch’essa di una comoda loggia coperta.

La zona notte è composta da due spaziose camere da letto matrimoniali, un pratico ripostiglio ed un bagno con doccia.

L’immobile è inoltre dotato di zanzariere e climatizzazione, per garantire comfort in ogni stagione.

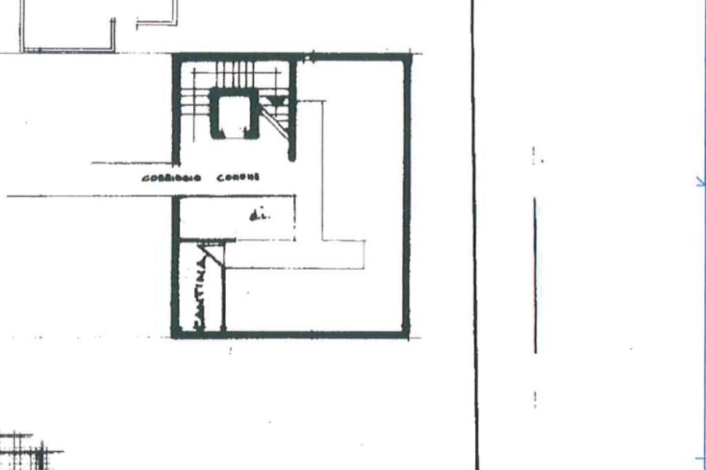
A completare la proprietà troviamo cantina e garage singolo al piano terra.

Contattaci per ulteriori informazioni o per fissare un appuntamento al 0522/957029, oppure mandaci una mail e verrai ricontattato al più presto: rehn2@tecnocasa .it

Mostra tutto

Nelle vicinanze

Trasporto pubblico Trasporto pubblico
Bagnolo
Bagnolo
990 m
Bagnolo Soave
Bagnolo Soave
190 m
Pieverossa
Pieverossa
1,1 Km
Scuole Scuole
Istituto Comprensivo "Ezio Comparoni"
750 m
Farmacia Farmacia
Farmacia Panciroli
840 m
Parafarmacia Salute e Benessere
1,0 Km
Farmacia Comunale Bagnolo
1,4 Km
Supermercati Supermercati
COOP
1,0 Km
DIMEGLIO
1,4 Km
Negozi Negozi
Forno F.lli Rondini
440 m
ECU
800 m
Ristoranti Ristoranti
Ca' Rossa
840 m
Trattoria da Probo
1,1 Km
Mostra tutto

Caratteristiche

Rif.:
61187934
Piano:
1 di 4 con ascensore (Piano basso)
Box:
1
Balconi:
2
Terrazzi:
1
Camere da letto:
2
Mostra tutto
Prezzo Prezzo
Informazioni in agenzia
Spese annue Spese annue
€ 950
Proponi il tuo prezzoProponi il tuo prezzo

Classe Energetica

G
G
G
G
G
G
G
G
G
EP globale non rinnovabile:
450.00 kW h/m² anno
EP invernale del fabbricato:
EP estiva del fabbricato:
Anno di costruzione:
1983
Riscaldamento:
Autonomo
Tipo impianto:
A radiatori
Tipo alimentazione:
Metano

Ti interessa visionare l'immobile?

Fissa un appuntamento  Fissa un appuntamento

Richiedi informazioni

Clicca su Leggi per aprire l'informativa
* Questi campi sono obbligatori
Affiliato
Studio Bagnolo In Piano Srl
Via Roma, 2/N 42011 Bagnolo In Piano (RE)

Il nostro staff


  • Alessandro Pasquali
    Affiliato

  • Cristian Salardi
    Responsabile

  • Alessandro Maddaloni
    Collaboratore

  • Anastasiya Slobodyan
    Coordinatrice
Via Roma, 2/N 42011 Bagnolo In Piano (RE)
Zona: Bagnolo In Piano-Pieve Rossa-San Tommaso-San Michele
Mostra su mappa
Orari: Dal lunedi al venerdi dalle 09:00 alle 13:00 - dalle 15:00 alle 20:00; il sabato dalle 09:00 alle 13:00 - dalle 15: 00 alle 18:00.
Affiliato
Studio Bagnolo In Piano Srl
Via Roma, 2/N 42011 Bagnolo In Piano (RE)

2026 Tecnocasa Franchising S.p.A. - P. IVA 08365160152 - Via Monte Bianco 60/A 20089 Rozzano (MI). Ogni agenzia ha un proprio titolare ed è autonoma. Privacy policy | Policy utilizzo | Cookie policy